TO BOOK AN INSPECTION VISIT WWW.DISHER.COM.AU/1950338
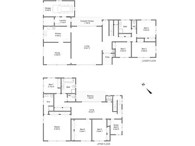
With eight bedrooms and recently refurbished lower lever this property will not disappoint. The large combined lounge/dining area downstairs leads into a modern kitchen with gas appliances as well as having access to a paved courtyard area. The air conditioned master bedroom has built in robes and ensuite. The house features two more bathrooms so there will be no fighting over the shower. Two of the other bedrooms have air conditioning as well as ceiling fans in the remaining . The downstairs areas have just been updated with new carpet, large cream tiles and new paint. The house features a separate lounge/living area upstairs as well a single lock up garage and two off street parking spaces. The property also features a fenced back yard and a separate fenced court yard.





















































