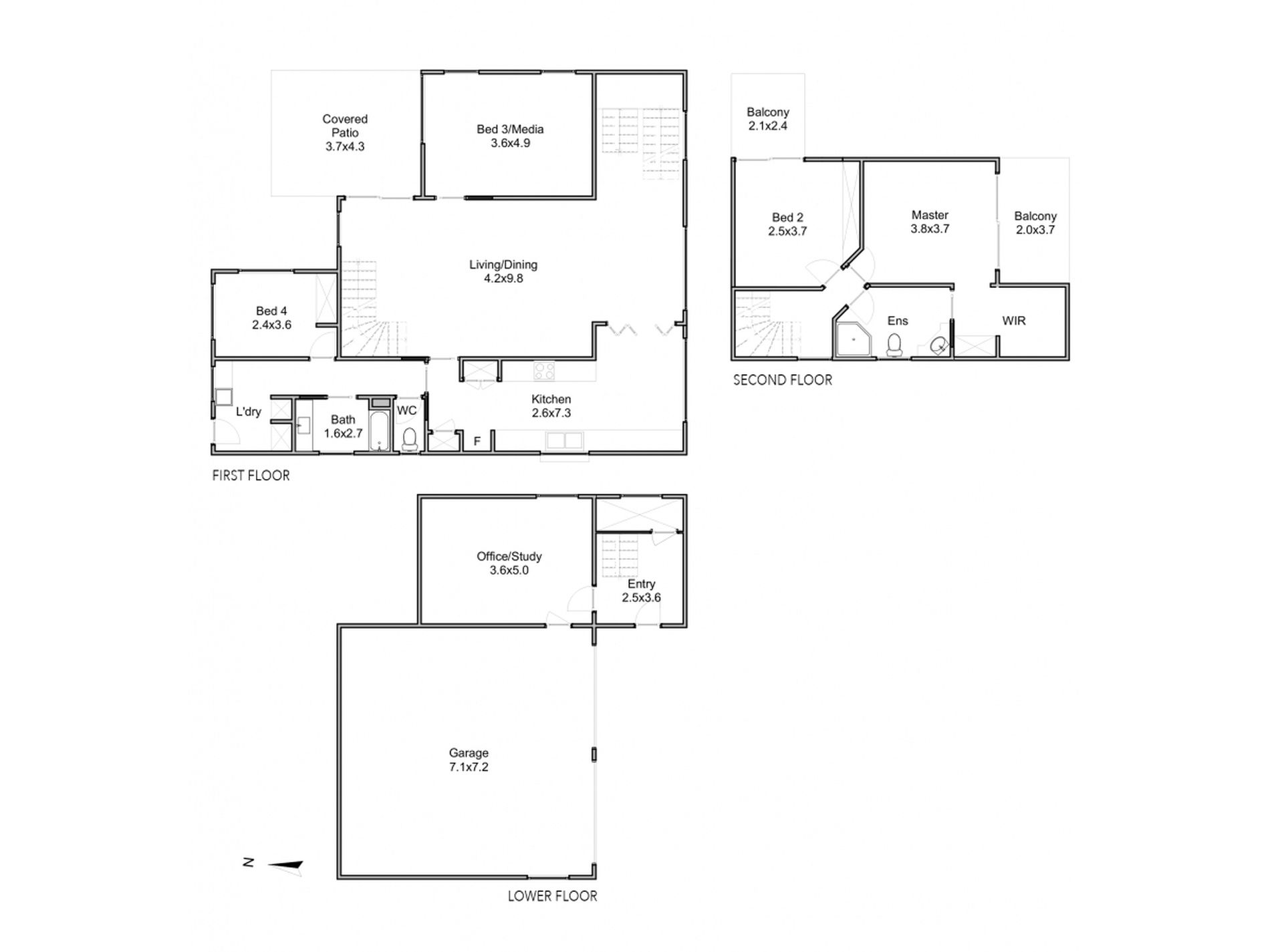
This tri-level home offers four bedrooms with the added convenience of built-in wardrobes and air-conditioning. Two of the upstairs bedrooms have their own private balconies. The master suite has a great sense of space with split system air-conditioning and ample natural light. The master bedroom is completed by a walk-in robe and two-way bathroom.
The split level design offers ample spaces for the whole family. Large lounge room with beautiful timber floors, perfect for quiet nights with the family. In winter or colder months you can sit around the wood fire stove. The lounge room connects to the covered entertainment area. Off the lounge room is a large room with timber flooring, it could be your bedroom or the media room. The view from the window overlooks the entertainment area and the picturesque leafy gardens.
The epicentre of the home is a well-designed kitchen, offering stone benches, an abundance of storage solutions with many drawers, along with a large pantry - this kitchen is 7mts long! Have your herbs growing in the indoor window box.
On the ground floor is the office. or study. off the double lock-up remote garage with additional storage. This stunning home has an enviable location.
Third Level
⢠Two bedrooms with private balconies
⢠Master with walk-in robe and air-conditioning
⢠Two-way bathroom.
Middle Level
⢠Large living/dining area with air-conditioning
⢠Timber floors
⢠Third bedroom or media room
⢠Forth bedroom with built-in robe and ceiling fan
⢠Bathroom with shower-over-bath
⢠Seven metre long kitchen with window box, informal dining
⢠Stone benches with dishwasher, many cupboards and drawers
⢠Wood fire stove.
First Level
⢠Entry with timber stairs leading to the living areas
⢠Study/office with built-in storage and benches
⢠Double lock-up remote garage with ample storage.
- Over-looking the St Lucia Golf Links approx. 180m.
- Walking distance to the Ironside State School approx. 400m
- Westfield Indooroopilly - 3km
- The University of Queensland - 4.5km
- The University of Queensland CityCat Terminal - 5km
- Indooroopilly State High School - 2km
- Holy Family Primary School - 2.5km
- Brisbane Boys' College - 3km
This home has it all! This property is water compliant, tenants pay for water consumed.
Register online and you will be immediately informed of any updates, changes or cancellations to your appointment or call Doug Disher Real Estate 3870 1234 to arrange a time for you.
*Whilst every care is taken in the preparation of the information contained in this marketing, Doug Disher Real Estate will not be held liable (financially or otherwise) for any errors or omissions relating to the property, contents and/or facilities in the property or complex. All interested parties and/or applicants should rely upon their own investigations to determine whether the property is suitable for their needs and all contents and facilities are present*



































