Check out the uninterrupted views from your broad balcony on the fourth floor to the City and the Brisbane River. The balcony's also a flexible spot for entertaining and capturing the river life all year round with plantation shutters for extra weather protection.
Only two units per floor giving you such a generously sized apartment. Step out of the lift and into your apartment with new carpet, fresh painted and new fans throughout.
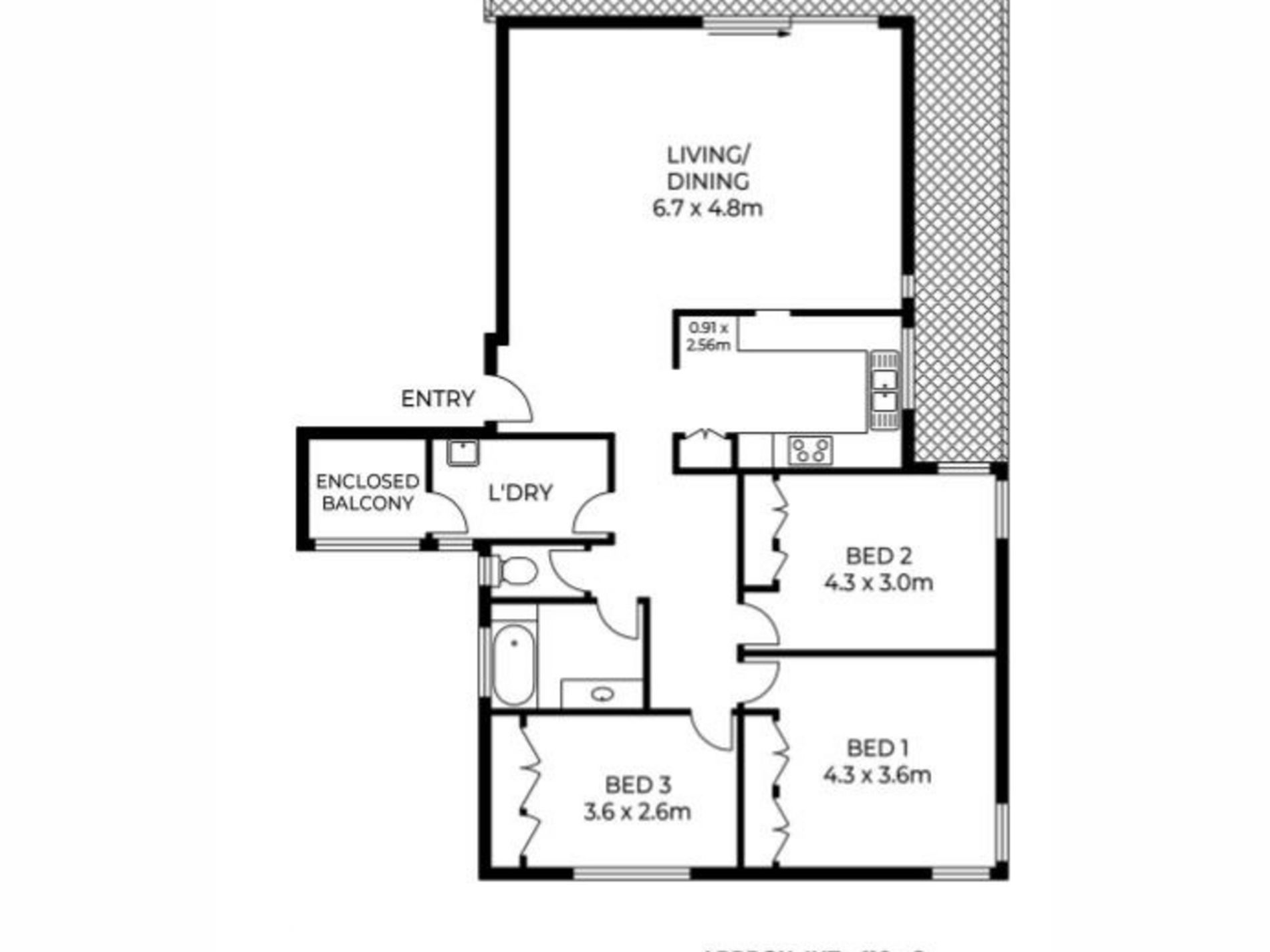
The large, combined lounge dining area allows you to have plenty of space leading out to the balcony and that view!
The back bedrooms both look out to the Mt Coot-Tha vista, all bedrooms have built-in wardrobes and fans.
Main bathroom has a new vanity with shower over bath and separate toilet.
Step back into the kitchen with loads of bench and cupboard space, electric cooking and generous fridge space.
Features;
⢠Three bedrooms all with fans and built-in wardrobes
⢠New carpet and freshly painted throughout
⢠Generous kitchen with electric cooking
⢠Large, combined lounge-dining area
⢠Main bathroom with shower over bath
⢠Separate toilet
⢠Sliding glass doors to front balcony with views
⢠Balcony with plantation shutters
⢠Forth floor with lift
⢠Secure intercom entry
Enjoy living within walking distance to Coronation Drive, easy access to the Bicentennial Bikeway, the CityCat terminal and buses inbound and outbound of the City.
Walking to the Park Road restaurant precinct is a stroll and once you've sampled everything there why not take the CityCat to Southbank and try the host of restaurants on that side. The Wesley Hospital is in walking distance up the road along with the Auchenflower train station.
Register online and you will be immediately informed of any updates, changes, or cancellations to your appointment, or call Doug Disher Real Estate 3870 1234 to arrange an inspection time for you.
The fastest, easiest way to apply for this property is through Ignite using the Apply Online feature.
*Whilst every care is taken in the preparation of the information contained in this marketing, Doug Disher Real Estate will not be held liable (financially or otherwise) for any errors or omissions relating to the property, contents and/or facilities in the property or complex. All interested parties and/or applicants should rely upon their own investigations to determine whether the property is suitable for their needs and all contents and facilities are present*

















